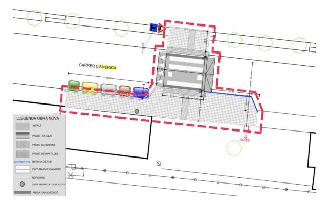
Més protecció per als vianants davant del complex esportiu de Can Parellada. Aquesta setmana s’han iniciat els treballs per construir un pas elevat de la calçada al carrer d’Amèrica. En concret, l’actuació se centra en uns metres abans de la sortida del camp de futbol d’aquest barri de Terrassa. Amb un pressupost de 26.241,03 euros, a càrrec de la UTE Consorci Egara Vallès Occidental CCDL, la intervenció persegueix dotar de més seguretat a les persones que entren i surten del complex esportiu, ja que l’accés coincideix amb una terrassa existent.
Aquesta acció, que està inclosa en el projecte de millora d’asfaltats a diferents carrers de la ciutat, pretén fomentar “que els vehicles redueixin la velocitat en aquest tram, donant màxima prioritat als vianants”. L’actuació manté, a més, l’execució de la vorera i inclou la col·locació de nous elements de drenatge. Els treballs tindran una durada d’execució de quatre setmanes.

Avancen les obres a l’avinguda Abat Marcet
D’altra banda, aquest divendres al matí l’alcalde de Terrassa, Jordi Ballart; acompanyat del tinent d’alcalde de Territori i Habitatge, Xavier Cardona, la tinenta d’alcalde i regidora del Districte 5, Patricia Reche i la regidora d’Obres Públiques, Montserrat Alba; han visitat les obres de renovació de l’asfalt i millora de l’accessibilitat a l’avinguda de l’Abat Marcet.
Des de principis de mes, s’està duent a terme una intervenció per adequar els guals a la cruïlla nord de l’avinguda amb el carrer dels Campiones Olímpiques. Segons informa l’Ajuntament de Terrassa, “en els punts en què el ferm estigui més malmès es renovaran totes les capes existents en calçada”. Finalment, es realitzaran els treballs de pintura, que inclouen tota la senyalització horitzontal: passos de vianants, delimitació dels carrils, zones d’aparcament, entre d’altres. L’obra ha estat adjudicada per un import de 172.429,66 euros amb IVA inclòs.
